Você já se perguntou qual a altura da rede de vôlei e por que ela varia tanto? Muita gente acha que é uma medida só, mas a verdade é mais interessante. Para jogar como os profissionais, saber as dimensões certas faz toda a diferença, seja na quadra ou na praia. Neste artigo, eu vou te mostrar as alturas oficiais e as adaptações para diferentes modalidades, garantindo que seu jogo seja sempre autêntico e dentro das regras. Chega de confusão, vamos direto ao ponto!
“A altura oficial da rede de vôlei varia: 2,43m para masculino, 2,24m para feminino, e diferentes medidas para vôlei de praia, sentado e categorias de base.”
Entendendo as Alturas Oficiais da Rede de Vôlei Masculino e Feminino
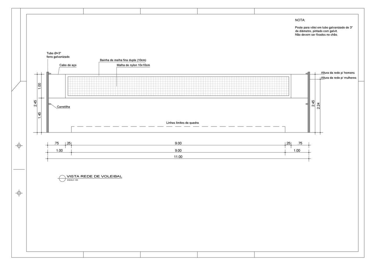
A diferença principal está nas alturas: 2,43 metros para os homens e 2,24 metros para as mulheres. Essas medidas não são à toa. Elas foram definidas para equilibrar o jogo, considerando a força e o alcance médio de cada gênero. Isso garante que o esporte seja desafiador, mas justo para todos.
No vôlei de praia, a regra é a mesma. As alturas oficiais são mantidas, 2,43m para o masculino e 2,24m para o feminino. A areia traz o desafio extra, mas a rede permanece um padrão para a disputa.

O Que é a Altura da Rede de Vôlei e Como Ela Impacta o Jogo na Prática
A altura da rede é um dos pilares que definem a dinâmica do vôlei. Essa dimensão não é aleatória; ela é calibrada para criar um desafio específico no jogo, influenciando a força dos ataques, a eficácia dos bloqueios e a necessidade de técnica para superar a barreira adversária. Vamos detalhar as especificações técnicas.
| Modalidade/Categoria | Altura Oficial (Metros) | Observações |
|---|---|---|
| Vôlei Masculino (Quadra) | 2,43 | Padrão FIVB para competições masculinas. |
| Vôlei Feminino (Quadra) | 2,24 | Padrão FIVB para competições femininas. |
| Vôlei de Praia | 2,43 (Masc.) / 2,24 (Fem.) | Mesmas alturas do vôlei de quadra. |
| Vôlei Sentado (Masculino) | 1,15 | Adaptada para atletas sentados. |
| Vôlei Sentado (Feminino) | 1,05 | Adaptada para atletas sentadas. |
| Vôlei Misto (Recreativo) | 2,35 | Comumente usada em eventos informais ou mistos. |
| Categorias de Base | Variável (ex: 2,20 / 2,35) | Ajustes para desenvolvimento de jovens atletas. |
| Tolerância de Medição | ± 2 cm | Nas extremidades da rede em relação ao centro. |

Vantagens, Desvantagens e o Impacto Real da Altura da Rede
A altura da rede é um fator crucial que molda a estratégia e a técnica no vôlei. Vamos ser diretos sobre o que isso significa na prática.
- Vantagem: A diferença de altura entre o masculino e o feminino força adaptações táticas e técnicas, tornando o jogo mais dinâmico e exigindo habilidades distintas de cada gênero.
- Vantagem: A padronização das alturas no vôlei de praia garante a continuidade do desafio atlético, independentemente do local da partida.
- Desvantagem: Para iniciantes ou categorias de base, as alturas oficiais podem ser um obstáculo inicial que exige adaptação gradual para evitar frustração.
- Impacto: Alturas menores, como no vôlei sentado, democratizam o esporte, permitindo a participação de um número maior de pessoas com diferentes capacidades físicas.
- Impacto: A variação de 2 cm nas extremidades da rede é um detalhe técnico que pode influenciar a precisão de saques e ataques próximos às linhas laterais em competições de alto nível.

Altura Oficial da Rede: Masculino vs. Feminino
A distinção principal e mais conhecida está nas alturas oficiais para o vôlei masculino e feminino em quadra. Para os homens, a rede é fixada a 2,43 metros. Essa altura eleva o nível do jogo, exigindo saltos mais potentes e ataques mais agressivos para transpor a barreira. Já para as mulheres, a altura oficial é de 2,24 metros. Essa diferença, embora pareça pequena, altera significativamente a dinâmica, favorecendo a velocidade, a precisão e a variação nas jogadas em vez da pura força bruta.

Variações da Altura da Rede em Outras Modalidades e Categorias
O vôlei não se resume apenas à quadra e às categorias adulta masculina e feminina. O vôlei de praia, por exemplo, mantém as mesmas alturas oficiais de 2,43m para homens e 2,24m para mulheres, adaptando o desafio ao ambiente externo. O vôlei sentado apresenta uma realidade completamente diferente, com redes significativamente mais baixas: 1,15m para homens e 1,05m para mulheres. Essa redução é essencial para a modalidade, permitindo que os atletas utilizem a força dos braços e do tronco para jogar. Para categorias de base ou eventos recreativos mistos, é comum o uso de alturas intermediárias, como 2,35m ou até 2,20m, visando facilitar o aprendizado e a participação de jogadores mais jovens ou com diferentes níveis de habilidade.

Preço Médio e Vale a Pena?
Quando falamos em redes de vôlei em 2026, o custo varia bastante. Uma rede oficial de qualidade para vôlei de quadra ou praia, homologada por federações, pode custar entre R$ 300 e R$ 800, dependendo da marca e do material (nylon, polietileno). Redes para uso recreativo ou escolar são mais acessíveis, geralmente encontradas entre R$ 100 e R$ 250. O vôlei sentado exige equipamentos específicos, e as redes adaptadas podem ter um custo similar às de quadra, variando de R$ 300 a R$ 700. Se vale a pena? Para quem busca um jogo competitivo ou treinamento sério, investir em uma rede oficial e de boa qualidade é fundamental para garantir a precisão das medidas e a durabilidade. Para lazer, opções mais simples cumprem o papel. A escolha depende diretamente do seu objetivo com o esporte.
Mais Detalhes e Inspirações Relacionadas

Rede de vôlei oficial masculina com 2,43 metros de altura, esticada entre postes metálicos pretos em uma quadra de madeira clara.

Rede de vôlei oficial feminina com 2,24 metros de altura, exibindo a cor branca em contraste com o fundo de uma quadra poliesportiva.

Detalhe da medição da altura da rede de vôlei no centro da quadra, indicando 2,43m para competições masculinas.

Rede de vôlei de praia com 2,43m (masculino) e 2,24m (feminino), tensionada sobre a areia clara sob luz solar intensa.

Comparativo visual das alturas da rede: 2,43m (masculino quadra), 2,24m (feminino quadra) e 1,15m/1,05m (sentado).

Rede de vôlei sentado masculina a 1,15 metros de altura, vista em uma quadra adaptada com piso emborrachado.

Rede de vôlei sentado feminina a 1,05 metros de altura, permitindo a interação próxima dos atletas em cadeiras de rodas.

Altura da rede para volei misto recreativo ajustada para 2,35 metros, ideal para grupos mistos em parques.

Poste de sustentação da rede de vôlei em metal escovado, com sistema de ajuste de altura visível.

Fita superior da rede de vôlei em material sintético resistente, com costura reforçada para maior durabilidade.

Medição da rede de volei oficial nas extremidades, mostrando a tolerância de até 2 cm acima da altura central.

Quadra de vôlei com rede branca e antenas laterais pretas, iluminação artificial uniforme proveniente do teto.

Vista aérea de uma quadra de vôlei de praia, destacando a rede tensionada entre os postes e a demarcação da quadra.

Atletas adaptando a altura da rede para categorias de base, utilizando um valor reduzido como 2,20 metros.

Sistema de fixação da rede nos postes, com catracas e cabos de aço garantindo a tensão ideal para o jogo.

O foco aqui é a usabilidade e o acabamento impecável.

Confira a aplicação prática e o resultado visual deste estilo.

Note os detalhes que fazem a diferença na composição final.

Uma variação interessante para adaptar ao seu projeto.

O foco aqui é a usabilidade e o acabamento impecável.
Dicas Extras
- Adaptação é a chave: Para jogos recreativos ou com crianças, não hesite em ajustar a altura da rede. O importante é a diversão e a participação de todos.
- Verifique a tensão: Uma rede bem esticada garante a precisão do jogo. Certifique-se de que ela esteja firme e sem afundamentos no centro.
- Iluminação adequada: Se você joga em quadras internas, garanta que a iluminação seja uniforme e não crie sombras que atrapalhem a visibilidade da rede e da bola.
Dúvidas Frequentes
Qual a altura oficial da rede de vôlei para competições?
A altura oficial varia. Para o vôlei masculino, são 2,43 metros. Para o feminino, a rede fica a 2,24 metros. Essas são as medidas padrão para a maioria das competições indoor.
E no vôlei de praia, a altura da rede é a mesma?
Sim, as medidas da rede de vôlei oficial são mantidas no vôlei de praia. A rede para homens tem 2,43m e para mulheres, 2,24m. A diferença está na areia e nas condições climáticas.
Existe uma altura específica para o vôlei sentado?
Com certeza. O vôlei sentado tem alturas de rede bem mais baixas para se adequar à modalidade. Para homens, a rede fica a 1,15 metros, e para mulheres, a 1,05 metros. É uma adaptação crucial para o esporte.
Conclusão
Dominar as dimensões da rede de vôlei é fundamental para qualquer entusiasta, seja jogando em quadra, na praia ou até mesmo no vôlei sentado. Agora que você já sabe sobre a altura da rede para volei, o próximo passo lógico é entender como funciona o desenvolvimento de atletas jovens, pois as adaptações na altura da rede são essenciais para essa fase. Lembre-se que a prática leva à perfeição, e conhecer as regras e medidas é o primeiro passo para um jogo mais justo e divertido.

