O que é um projeto de loteamento? Essa é uma dúvida que surge quando pensamos em transformar terrenos em espaços urbanos funcionais. Muita gente se perde nos detalhes burocráticos e técnicos, sem saber por onde começar ou quais os reais benefícios de um bom projeto. Se você busca clareza sobre esse processo e quer entender como ele pode valorizar um investimento ou criar moradias de qualidade, este guia é para você. Vamos desmistificar o loteamento e apresentar o caminho para que ele se torne um sucesso.
“O custo médio para desenvolver um loteamento no Brasil varia entre 20% e 40% do Valor Geral de Vendas (VGV) esperado.”
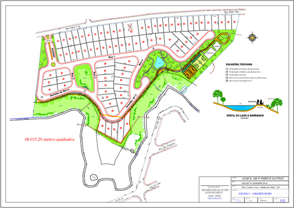
Como um projeto de loteamento se estrutura para criar cidades planejadas em 2026?
Um projeto de loteamento é a base para a expansão urbana organizada. Ele define como um terreno será dividido em lotes menores, com vias de acesso e áreas comuns. Pense nisso como o mapa que garante que a cidade cresça de forma inteligente.
Ele detalha infraestrutura essencial: saneamento, energia elétrica e iluminação pública. Garante que os novos moradores tenham acesso a serviços básicos desde o início.
Áreas verdes e de lazer também são planejadas. Isso eleva a qualidade de vida e cria espaços de convivência para a comunidade.
A regulamentação, como a Lei Federal nº 6.766/79, garante que tudo seja feito dentro das normas. Isso protege tanto quem loteia quanto quem compra o terreno.
Profissionais qualificados, como engenheiros e arquitetos urbanistas, são fundamentais. Eles trazem o conhecimento técnico para que o projeto seja viável e seguro.

O que é um projeto de loteamento e como ele funciona na prática
Um projeto de loteamento é um plano detalhado para dividir uma área maior de terra em lotes menores, destinados à edificação. Ele envolve estudos técnicos, legais e urbanísticos para garantir que a nova área seja funcional, segura e atenda às normas vigentes. Na prática, é a base para a criação de novos bairros ou expansões urbanas, definindo o traçado de ruas, áreas verdes, áreas institucionais e a dimensão de cada lote. A regulamentação principal no Brasil é a Lei Federal nº 6.766/79.
| Item | Especificação/Descrição | Profissionais Envolvidos |
|---|---|---|
| Objetivo Principal | Parcelamento do solo para fins urbanos, criando novos lotes para construção. | Arquiteto Urbanista, Engenheiro Civil |
| Infraestrutura Básica | Ruas, calçadas, iluminação pública, saneamento básico (água, esgoto), drenagem. | Engenheiro Civil, Engenheiro Agrimensor |
| Áreas Públicas | Reservadas para uso comum: praças, parques, áreas institucionais (escolas, postos de saúde). | Arquiteto Urbanista |
| Dimensão dos Lotes | Variável, definida pelo plano diretor do município e pela legislação específica. | Arquiteto Urbanista, Engenheiro Agrimensor |
| Documentação Legal | Projeto aprovado pelos órgãos competentes, registro no Cartório de Imóveis. | Engenheiro Agrimensor, Advogado (consultoria) |
| Profissionais Habilitados | Engenheiro Agrimensor, Engenheiro Agrônomo, Engenheiro Civil, Engenheiro de Fortificação e Construção, Arquiteto Urbanista. | Todos os listados |

Vantagens, Desvantagens e Impacto Real
- Vantagem: Criação de novas áreas urbanizadas, impulsionando o desenvolvimento imobiliário e a oferta de moradias.
- Vantagem: Planejamento estruturado que pode prever infraestrutura adequada e áreas de lazer, melhorando a qualidade de vida.
- Vantagem: Potencial de valorização imobiliária para os lotes e empreendimentos adjacentes.
- Desvantagem: Altos custos iniciais com estudos, projetos, aprovações e implantação da infraestrutura.
- Desvantagem: Processos burocráticos e demorados para aprovação junto aos órgãos públicos.
- Desvantagem: Impacto ambiental que precisa ser cuidadosamente gerenciado para mitigar efeitos negativos.
- Desvantagem: Risco de especulação imobiliária e gentrificação, alterando o perfil socioeconômico da região.

O que compõe um projeto de loteamento?
Um projeto de loteamento é um conjunto complexo de documentos e estudos. Ele inclui o memorial descritivo, que detalha as características gerais do empreendimento e da área loteada; a planta de loteamento, que mostra a divisão dos lotes, quadras, ruas e áreas públicas; o projeto urbanístico, que define o traçado das vias e a disposição dos lotes de acordo com princípios de planejamento urbano; e os projetos de infraestrutura, como redes de água, esgoto, drenagem pluvial, energia elétrica e iluminação pública. Além disso, são necessários estudos de impacto ambiental e social, e a aprovação em diversos órgãos públicos, como prefeitura e órgãos ambientais.

Etapas principais para a realização de um loteamento
O processo inicia com a viabilidade técnica e legal, seguida pela elaboração do projeto urbanístico e dos projetos de infraestrutura. Em paralelo, são realizados os estudos de impacto ambiental e social. A submissão do projeto à prefeitura para aprovação é uma etapa crucial, que pode envolver audiências públicas e a obtenção de licenças. Após a aprovação, o projeto é registrado no Cartório de Registro de Imóveis. A fase final é a implantação da infraestrutura prometida, que deve ser concluída antes da venda dos lotes, conforme a legislação.

Custo médio de um projeto de loteamento no Brasil
O custo de um projeto de loteamento no Brasil é significativo e pode variar amplamente. Geralmente, ele representa entre 20% a 40% do Valor Geral de Vendas (VGV) esperado para o empreendimento. Essa porcentagem engloba desde os estudos preliminares, aprovações legais, impostos, até a execução da infraestrutura básica (ruas, redes de água, esgoto, energia, iluminação) e a criação de áreas verdes e institucionais. Profissionais habilitados como engenheiros agrimensores, civis e arquitetos urbanistas são essenciais e seus honorários compõem parte importante desse custo.

Preço Médio e Vale a Pena? (Mercado 2026)
Analisar se um projeto de loteamento vale a pena em 2026 exige uma visão de mercado apurada. O custo médio para desenvolver um projeto, incluindo estudos, aprovações e infraestrutura, pode ser um investimento substancial. No entanto, a demanda por novas áreas urbanizadas e lotes para construção continua alta em muitas regiões do Brasil. A viabilidade financeira depende fortemente da localização, do potencial de mercado local, da eficiência na gestão do projeto e da capacidade de agregar valor com planejamento urbano de qualidade. É fundamental uma análise de risco detalhada e um estudo de viabilidade econômica robusto para determinar o retorno sobre o investimento. Consultar especialistas e analisar o plano diretor do município são passos indispensáveis antes de tomar uma decisão.
Mais Detalhes e Inspirações Relacionadas

Vista aérea de um loteamento em desenvolvimento, mostrando a demarcação de lotes e a infraestrutura inicial de ruas.

Planta baixa detalhada de um projeto de loteamento, com a divisão de lotes, áreas verdes e vias de acesso.

Máquina pesada realizando a terraplanagem em uma área destinada a um novo loteamento urbano.

Técnico de agrimensura utilizando estação total para demarcação precisa dos limites dos lotes no terreno.

Equipe de engenheiros discutindo o projeto de infraestrutura de saneamento básico para o loteamento.

Caminhão transportando material de pavimentação para as ruas em construção do empreendimento.

Instalação de postes de iluminação pública em uma rua recém-pavimentada de um loteamento.

Paisagista definindo o projeto de arborização e áreas de lazer para o futuro loteamento.

Fachada de um centro de vendas de loteamento com maquete do empreendimento exposta.

Família analisando a planta de um lote em um estande de vendas de loteamento.

Vista de um loteamento com casas já construídas, mostrando a integração da infraestrutura com as residências.

Área de lazer em um loteamento com playground infantil em piso emborrachado colorido.

Calçada larga e arborizada em um loteamento, incentivando o caminhar e a convivência.

Projeto de drenagem pluvial do loteamento, com detalhes de bueiros e galerias.

Vista noturna de um loteamento com iluminação pública eficiente nas ruas e calçadas.

O foco aqui é a usabilidade e o acabamento impecável.

Confira a aplicação prática e o resultado visual deste estilo.

Note os detalhes que fazem a diferença na composição final.
Dicas Extras
- Planejamento é tudo: Antes de iniciar qualquer projeto de loteamento, faça um estudo de viabilidade detalhado. Analise o mercado, a demanda local e os custos envolvidos. Saber quanto custa para fazer um loteamento é crucial para o sucesso.
- Conheça a Lei: A Lei Federal nº 6.766/79 é a base para qualquer parcelamento do solo urbano. Entender a legislação brasileira sobre parcelamento do solo urbano evita dores de cabeça e multas futuras.
- Equipe Multidisciplinar: Contrate profissionais habilitados como engenheiros e arquitetos urbanistas. Eles são essenciais para garantir que o projeto atenda a todas as normas técnicas e legais.
- Orçamento Realista: O custo médio de aprovação de loteamento pode variar bastante. Tenha em mente que o percentual do VGV em loteamentos pode ser consumido por taxas, impostos e infraestrutura.
- Visite Loteamentos Existentes: Vá a outros empreendimentos para entender o que funciona e o que pode ser melhorado. Observe a infraestrutura, o paisagismo e a integração com o entorno.
Dúvidas Frequentes
O que é o VGV em um loteamento?
VGV significa Valor Geral de Vendas. É a soma de todos os valores de venda previstos para as unidades imobiliárias do empreendimento. O percentual do VGV em loteamentos é uma métrica importante para calcular a rentabilidade e os custos.
Quanto tempo leva para aprovar um loteamento?
O tempo de aprovação varia muito dependendo da prefeitura e da complexidade do projeto. Pode levar de alguns meses a mais de um ano. É fundamental ter um bom acompanhamento e conhecer o passo a passo para aprovação de um projeto de loteamento na prefeitura.
Qual a diferença entre loteamento e condomínio?
Em um loteamento, as ruas e áreas comuns são públicas, pertencendo ao município. Já em um condomínio, essas áreas são privadas e de uso exclusivo dos condôminos. Entender a diferença entre loteamento e condomínio é vital para escolher a melhor opção.
Quais os principais custos envolvidos em um loteamento?
Os custos incluem estudos preliminares, projetos, aprovações legais, impostos, taxas, infraestrutura (ruas, saneamento, energia, iluminação), marketing e vendas. O custo médio de aprovação de loteamento é uma parte significativa, mas a infraestrutura costuma ser o maior investimento.
Conclusão
Agora que você tem um panorama completo sobre o que é um projeto de loteamento e suas vantagens, o próximo passo lógico é entender como funciona o passo a passo para aprovação de um projeto de loteamento na prefeitura. Lembre-se que um bom planejamento e a contratação dos profissionais essenciais para projetos de loteamento são a chave para um empreendimento de sucesso. A legislação brasileira sobre parcelamento do solo urbano é robusta, e segui-la à risca garante segurança jurídica e valorização do seu investimento.

